Länsituuli sijaitsee ainutlaatuisen Tapiolan kävelykeskustan ytimessä, Heikintorin ja uuden AINOAn välissä. Kokonaisuudessaan Länsituulessa on noin 6000 m² liiketilaa neljässä kerroksessa. Liiketilojen päällä kohoaa seitsemän kerrosta asuntoja.Länsituulesta on sisäkautta asiakkailla kulkuyhteys metrolle, bussiterminaaliin sekä Tapiolan keskuspysäköintiin. Länsituuli tarjoaa tilaa yrityksesi menestykselle keskellä vakiintunutta kaupallista ympäristöä, mutta moderneissa, upouusissa tiloissa.
Elannon korttelissa sijaitseva toimistokiinteistö, jossa loft-henkistä työskentelytilaa kuudessa kerroksessa.
Täysin uudistetut, työyhteisöäsi varten rakennettavat toimitilat ydinkeskustasta! Dekki, Punavuoren duunimesta Annankadun ja Uudenmaankadun kulmassa, saneerataan täysin. Dekin avarissa, valoisissa tiloissa on erityisen tehokas pohjaratkaisu, nykyaikainen tilatekniikka ja korkealaatuiset pintamateriaalit. Talon suuri kerroskoko mahdollistaa hyvin joustavan tilojen toteutuksen ja 1800m² kerrokseen on mahdollista istuttaa jopa yli 200 työpistettä yhteen tasoon, sisältäen tarpeelliset neuvotteluhuoneet ja lounget. Kerros on myös jaettavissa yrityksesi tilatarpeen mukaan ja tarjolla on monipuolisesti erilaisia kokonaisuuksia. Dekki on erinomainen ratkaisu yritykselle, joka arvostaa räätälöitävyyttä ja sijaintia. Talon erikoisuutena keskustan alueella iso oma parkkihalli. Lisäksi käytettävissä pyöräparkki ja suihkutilat, sekä runsaasti erilaisia ravintoloita ja kahviloita vain muutaman korttelin etäisyydellä.
Tämä Katajanokanrannan vierasvenesatamaan katsova upea toimistotalo on ulkoa tyyliltään kaunista myöhäisjugendia. Klassisen ulkomuodon sisään kätkeytyy kuitenkin modernia toimistotilaa yritykselle, joka arvostaa erinomaista sijaintia merellisessä ympäristössä. Koko rakennuksen modernisoinut peruskorjaus on valmistunut syksyllä 2019. Kerroskoko on varsin kompaktisti 250m2, johon toteutamme joustavat, monipuoliset tilat tarpeidenne mukaan. Mikäli tilatarve on tätä pienempi, kerros on mahdollista jakaa kahteen osaan. Peruskorjauksen yhteydessä taloon rakennettiin myös esimerkiksi työmatkapyöräilijöitä palvelevat kätevät pukuhuone- ja suihkutilat. Talossa on erikseen vuokrattavissa viihtyisiä, nykyaikaisia neuvottelu- ja kabinettitiloja sekä katutasossa että upeassa ullakkokerroksessa. Kanavarannassa olet kivenheiton päässä Kauppatorilta, sujuvan raitiovaunuyhteyden varrella ydinkeskustasta.
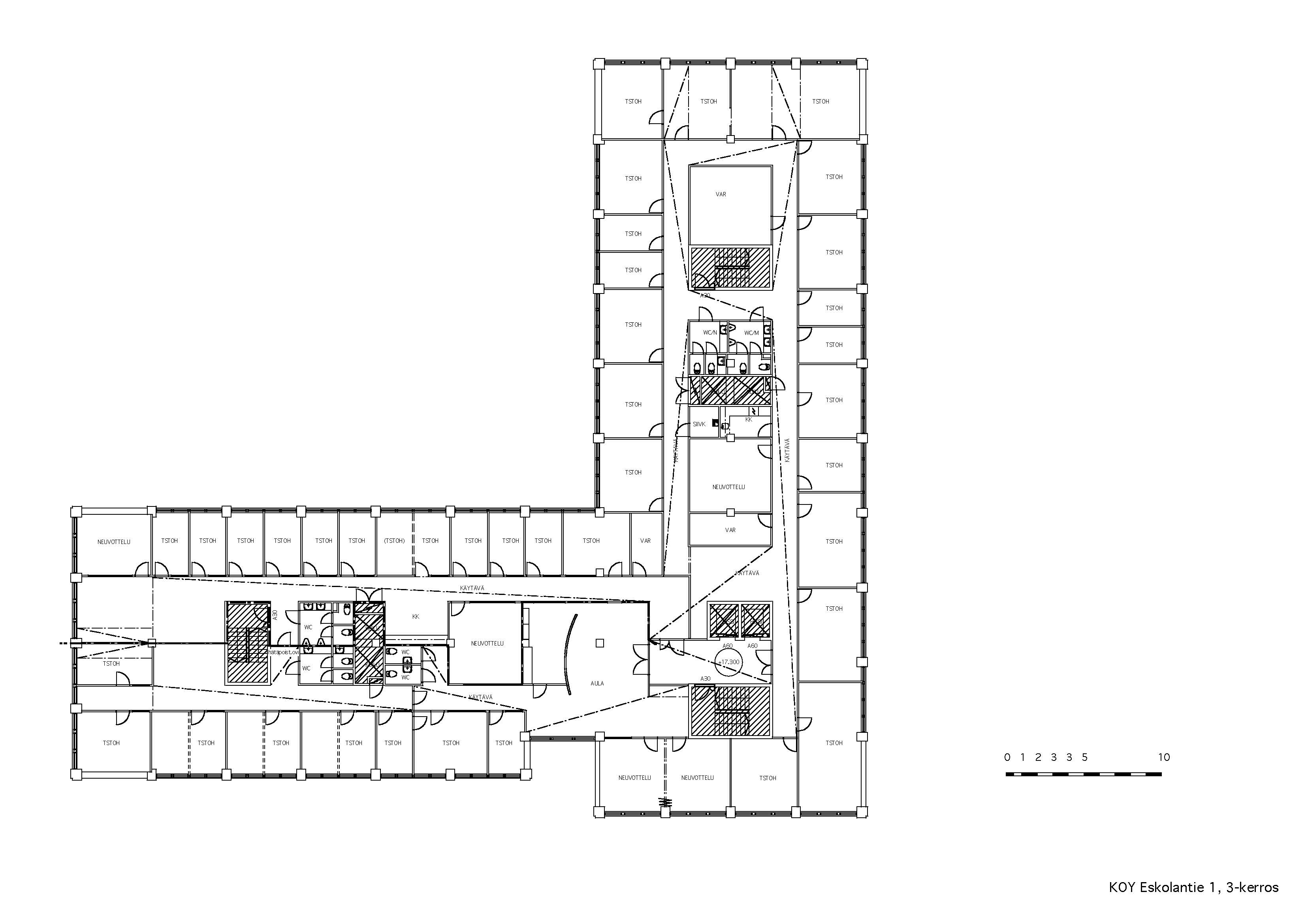
Pohjakuva on viitteellinen. Tiloja voidaan vuokrata huoneittain tai suurempina kokonaisuuksina. Mahdollisuus vuokrata huoneita myös alvittomana toimijana.
TAKAISIN YLÖS