As Oy Helsingin Kruunuvuoren Ankkuri

Gunillantie 17

Moderneja huoneistoja uudella Kruunuvuoren asuinalueella.  Huoneistoissa lasitetut ja tilavat parvekkeet tai ranskalaiset parvekeet. Ylimmässä kerroksessa talosauna ja kerhohuone merinäköalalla. Autopaikkoja viereisestä Kruunuparkista. 

 

Yleistä kiinteistöstä

Katuosoite: Gunillantie 17
Postinumero ja postitoimipaikka: 00870, Helsinki
Rakennusvuosi: 2016
Energialuokka: C
Hissien lukumäärä: 2
Kerrosten lukumäärä: 5
Huoneistojen koot: 37,0 -77,0 m2
Huoneistojen lukumäärä: 75
Lämmitysjärjestelmä: Kaukolämpö
Kerhohuoneiden lukumäärä: 1
Autopaikat: 41
Kaapeli-TV:n tuottaja: DNA
Lisätietoa: As Oy Kruunuvuoren Ankkuri tarjoaa myös katutason liiketiloja
Energiatodistus: Energiatodis ja energiaselvitys liitteineen
Lemmikit sallittu: Sopimuksen mukaan
Kuivaushuone: Kyllä
Pesutupa: Kyllä
Talosauna: Kyllä
Pelastussuunnitelma: Kiinteistön pelastussuunnitelma

Yhteystiedot asukkaalle

Asiakaspalvelu: Kodisto Asukassivusto
Isännöinti: Newsec Isännöinti
Huolto: Kotikatu Laajasalo, p 010 270 8420
Vuokravalvonta: Newsec Vuokrahallinto

Kiinteistön asuntotyypit

Kruunuvuorenranta_2h_kt_35, 2h, tk, rp

2h+tk+rp, 35,0 m2

Kruunuvuorenranta_2h+kt_35_2h+kt+lp

2h+kt+lp, 35,0 m2

Kruunuvuoreneanta_2h+kt+39_Lasitettu_parveke_asuntopohjat-6, 39, lp

2h+kt+lp, 39,0 m2

2h+kt+rp, 39,5 m2

2h+kt+lp, 45,0 m2

3h+kt+lp, 46,0 m2

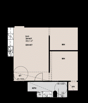
3h+kt+lp, 48,0 m2

2h+kt+rp, 52,0 m2

2h+kt+lp, 52,0 m2

Kruunuvuorenranta_3h+kt+55_5+Te_asuntopohjat-2

3h+kt+te, 55,5 m2

Kruunuvuorenranta_3h+kt+68+LP_asuntopohjat-15

3h+kt+lp, 68,0 m2

Kruunuvuoreneanta_3h+kt+76+LP

3h+kt+lp, 76,0 m2

Kruunuvuorenernta_4h+kt+77+LP

4h+kt+lp, 77,0 m2