Kiinteistö Poitsila II

Marjarinne 4

Monenkokoisia asuntoja tarjolla vuokralle Haminan Poitsilassa. Marjarinne 4 on kolmikerroksinen kiinteistö, jonka huoneistossa lasitetut parvekkeet. Pihalla oma grillikatos. Vuokrattavissa myös autopaikkoja.

Yleistä kiinteistöstä

Katuosoite: Marjarinne 4
Postinumero ja postitoimipaikka: 49460 Hamina
Rakennusvuosi: 1970
Hissien lukumäärä: 0
Kerrosten lukumäärä: 3
Huoneistojen koot: 35,0-92,0 m2
Huoneistojen lukumäärä: 32
Lämmitysjärjestelmä: Kaukolämpö
Autopaikat: 17
Lemmikit sallittu: Sopimuksen mukaan
Kuivaushuone: Kyllä
Pesutupa: Kyllä
Talosauna: Kyllä
Pelastussuunnitelma: Kiinteistön pelastussuunitelma

Yhteystiedot asukkaalle

Asiakaspalvelu: Kodisto Asukassivusto
Isännöinti: Newsec Isännöinti
Huolto: Haminan talonmiespalvelut, p. 050 356 5239
Vuokravalvonta: Newsec Vuokrahallinto

Kiinteistön asuntotyypit

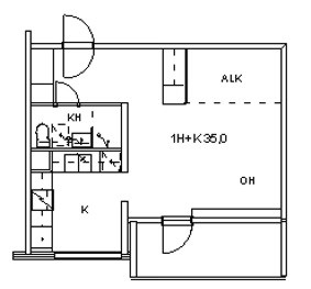
1h+kk, 35,0 m2

1h+k, 39,0 m2

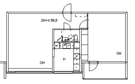
2h+k, 59,5 m2

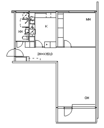
2h+k, 63,0 m2

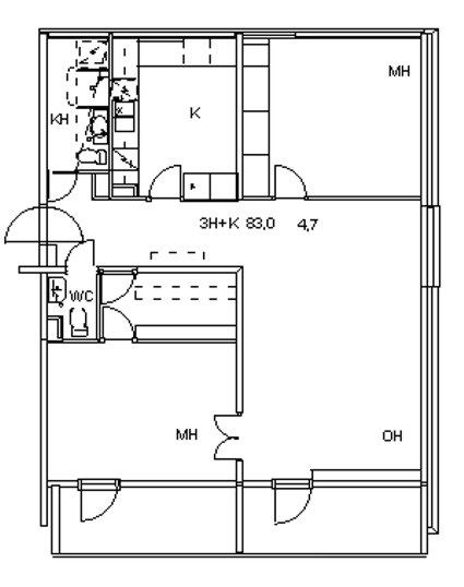
3h+k, 83,5 m2

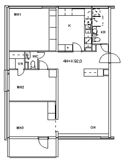
4h+k, 92,0 m2